Аренда производственного помещения

1 761 240 ₽/мес

9 360 ₽ за м²/год

2 258 м²
Площадь
1/2
Этаж

Поделиться

Добавить в избранное

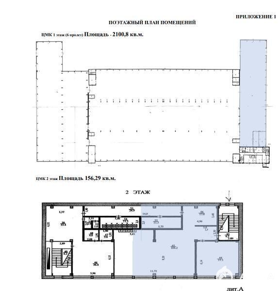
Энже. Предлагаем на огрорженной, ораняемой территории 2101 кв.м. под скалад или производство +157 кв.м. под офис, раздевалку, столовую. С двумя кран балками с грузоподъемностью 10 тн и 50 тн, управляемые с земли оператором. Центральное отопление, канализция, Выссота потолков 14 м. . Двое ворот. К арендной ставке добавляется отдельно отопление, электричество и НДС (22 %). До Ж\Д станции " Ипподром " 10 мин. пешком. До Раменки 20 мин. Также можно арендовать отдельно офисные помещения от 40 кв.м. 24/7 Агентам просьба не звонить.

Дата обновления: 25 февраля 2026

Помещение С кран-балкой Производственно-офисное